著者
西山 能信
2025.07.02
目次
不動産室 西山です。
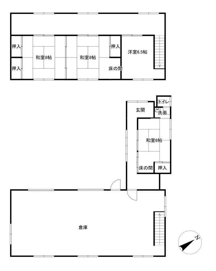
新たに売却をお任せいただいた中古住宅をご紹介させていただきます。
所在 :今治市国分四丁目1-47
土地面積:545.45㎡(164.99坪)
都市計画:市街化調整区域
地目 :宅地(線引き前宅地)
建物面積:居宅①:22.34㎡(6.75坪)
居宅②:122.47㎡(37.04坪)
倉庫 :161.24㎡(48.77坪)
築年 :居宅①:昭和32年
居宅②:昭和43年
倉庫 :平成9年
構造 :居宅①:木造平家建
居宅②:木造2階建
倉庫 :鉄骨造2階建
取引形態:媒介
せとうちバス 国分寺バス停まで徒歩2分
ファミリーマート 今治国分店さんまで徒歩11分
こちら950万円で販売しております。
ご興味をお持ちいただけましたら、重松建設 不動産室 西山までお問い合わせください。

