このイベントは終了しました。
たくさんのご来場、ありがとうございました!
完全予約制
毎日の動きがスムーズになる、心地よく整った平屋
- 今治市上徳甲116-6
- 2025年8月30日〜2025年9月7日
point
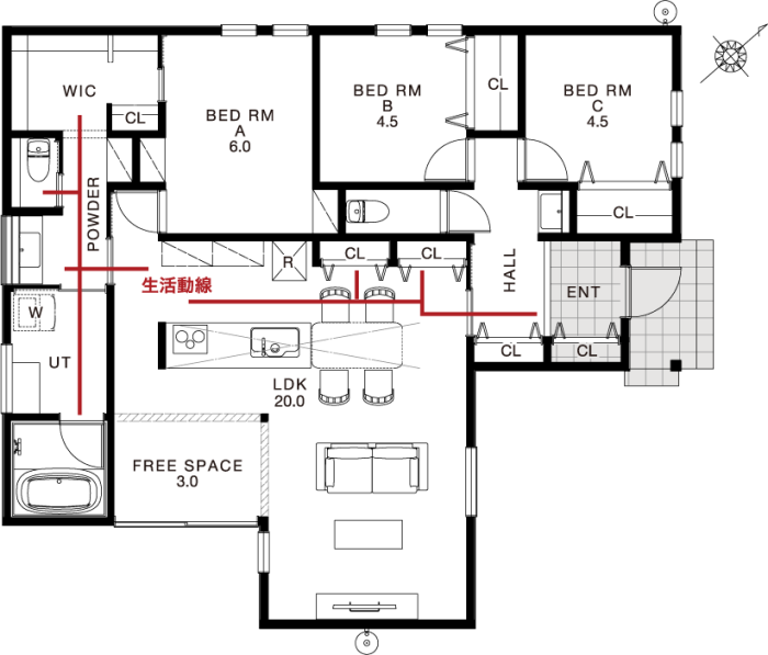
このイベントのポイント
- かけ違い屋根の外観:シンプルな平屋に個性と存在感をプラス。
- オープンキッチンのLDK:開放感があり、家族の会話も弾む。
- 回遊できる生活動線:移動がスムーズで、毎日の動きが快適に。
- 2か所の洗面スペース:ただいまのあと、すぐに手が洗える安心感。
- ゆったり広めの玄関:人の出入りや荷物の搬入もスムーズで快適。















